This news comes fresh from the drawing board and concerns a newly built project in a quiet neighborhood in Antibes. Surrounded by small residences lies a historic lemon grove and the collapsed remains of what once was a farm. The orchard luckily remains, but the farmhouse makes place for a number of luxury apartments, some of which have a wide sea view, over ancient Antibes. If you do not want to live in the hustle and bustle, but looking for all cosiness at a short distance, this new construction project in Antibes is something for you. Reading tip! An article about Reasons to buy a villa or apartment in Antibes Juan les Pins.

New apartment Antibes with XL roof terrace and sea views
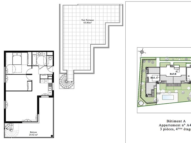
The sandy beaches of Antibes and the cozy harbor can be reached within ten minutes and also Biot, Valbonne, Cannes and Nice are close by. We can offer you several apartments in this complex, from 250,000 euros. The apartment we offer you is truly unique and is located on the top floor of the A building. This building offers the best sea view, two bedrooms and a large outdoor terrace for those lovely summer evenings or South French sunny mornings.

New apartment Antibes with XL roof terrace and sea views
You have the sun all day long; from left to right. But since this week, a number of apartments is equipped with a 63 sqm extra roof terrace for obviously a better view of the sea. Within the domain, you will need to take the elevator down to enjoy a swim in the pool. The price for all this is 448,000 euros, excluding parking or garage.
This is your chance in Antibes, in such a lovely location. Delivery first quarter 2019. Deposit 3%. Notary fee 2.5%. You can respond quickly and call Ab and Jo on +33770186203 or email us at info@livingonthecotedazur.com




