- Type of construction:Bestehende Immobilien
- Property type:Villa
- Number of beds:6
- Living area:308m²
- Plot size:370m²
- Price per m²:€ 5,681.82
- LOCA ID:VILRIV-ANTYP
Beschreibung
Zu verkaufen in Grimaud: eine der allerersten Villen im ART-DECO-Stil, die in den 1930er Jahren in der Nähe der Strände gebaut wurde. Ein außergewöhnliches ART-DECO-Haus mit Gästehaus, 3 Gehminuten von den Stränden entfernt! Die aktuelle Villa steht mit Baugenehmigung zum Verkauf und es ist geplant, das Wohnhaus um ein Gästehaus und einen Swimmingpool zu erweitern.
Der Architekt ist Herr PAPPALARDO und sein Ziel war es, den bemerkenswerten bestehenden Art-Deco-Stil zu bewahren und gleichzeitig verschiedene Erweiterungen zu realisieren, die es ermöglichen, ein außergewöhnliches Anwesen nach aktuellen Standards anzubieten. Der Respekt vor seiner Architektur wird es ermöglichen, die Seele dieser Villa und einer ganzen Ära zu bewahren, die einer anspruchsvollen Klientel am Herzen liegt.
Grimaud-Renovierungsprojekt: Art-Deco-Villa in Strandnähe
Natürlich wird die Art-Deco-Villa in Grimaud vollständig vernetzt sein und über optimalen Komfort (Innenaufzug) und erstklassige Dienstleistungen verfügen. Das Gästehaus wird 3 Schlafzimmer haben, um das Potenzial des Ganzen auf 6 Betten zu bringen. Die Baugenehmigung liegt seit dem 18. November 2022 vor, die Arbeiten sollen 2023 beginnen und Ende 2024 geliefert werden.
In dieser Phase des Vorgangs bieten wir unseren Kunden eine Personalisierung des Ganzen an. Die Arbeitskosten können sich je nach Kundenspezifikation ändern.
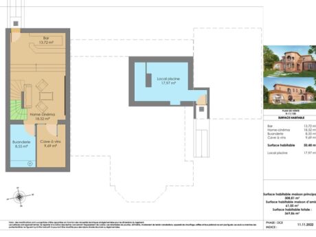
Grundstücksgröße: 308 m² Wohnfläche
Gesamtwohnfläche: 370 m² bewohnbar
Parken: Im Preis inbegriffen
Möglichkeit: Garage zusätzlich
Verkaufspreis Villa mit Genehmigung: 1.750.000 €
Geschätzte Kosten der Arbeiten: 2.000.000 €
Eine einzigartige Villa in Grimaud
Der Begriff Art Deco bezieht sich auf die Bewegung, die in den 1920er Jahren entstand und in den 1930er Jahren zu einem wichtigen Stil in der Architektur und der dekorativen Kunst wurde. Es wurde erstmals 1925 auf einer internationalen Messe in Paris ausgestellt.
Das Design des Art Deco war ein wichtiger Bestandteil der Entwicklung der Modeindustrie in den 1920er Jahren. Seine Produkte wurden sowohl in Massenproduktion als auch individuell gefertigt. Das Ziel des Stils war es, einen eleganten und dezenten Look zu kreieren, der sowohl Raffinesse als auch Reichtum repräsentiert. Zu den verschiedenen Merkmalen dieses Stils gehören klare Linien und geometrische Formen sowie ungewöhnliche Materialien wie Kunststoff und Glas.
Obwohl Art-Deco-Objekte selten in Massenproduktion hergestellt wurden, zeigten ihre Eigenschaften Bewunderung für ihre Designqualitäten.
![]()
Map
Request More Information
„*“ zeigt erforderliche Felder an














